תיאור
טריפלקס עם רוף-טופ

מיקום
ברוקלין, ניו יורק ארה״ב

גודל
360 מ״ר

שירותים
עיצוב פנים | פיקוח בשטח

פלטת חומרים בפרויקט
פלטת חומרים בפרויקט
אגוז אמריקאי

אגוז אמריקאי

קורות פלדה

קורות פלדה

שיש קררה

שיש קררה

אגוז אמריקאי

אגוז אמריקאי

קורות פלדה

קורות פלדה

שיש קררה

שיש קררה

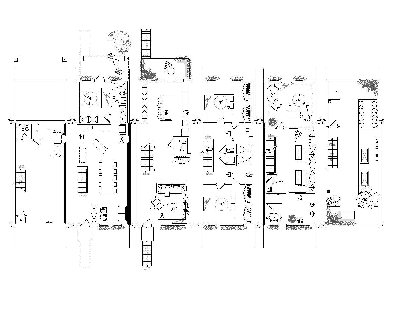
בפרויקט ברחוב הולסי בברוקלין עמד מולנו מבנה צר וארוך, בן ארבע קומות, טיפוסי לטאונהאוס ניו־יורקי. הלקוח, יזם נדל״ן, רכש את הבניין במטרה להשביח אותו ולהחזיר לו את ייעודו המקורי – בית מגורים אמיתי, חמים ומשפחתי. ההחלטה התגבשה להפוך את המבנה למעין טריפלקס מודרני, שבו הקומות התחתונות משמשות אזורים ציבוריים – סלון, מטבח, שירותים ומרפסות – והעליון הופך לאינטימי יותר ופרטי. גג המבנה הוסב לרוף־טופ פתוח עם גינת תבלינים ונוף פנורמי מרהיב אל קו הרקיע של מנהטן.

העבודה בוצעה כולה בשיתוף צוות מקומי ובאמצעות חומרים זמינים ועמידים – מתוך רצון לשמור על איכות גבוהה לצד עמידות ויעילות כלכלית, שכן מדובר בנכס שמיועד להשכרה. החומרים שנבחרו היו קלאסיים ונטולי יומרה, והסגנון – מודרני, נקי וברור. האתגרים היו רבים, בעיקר לוגיסטיים ורישויים, אך כולם נפתרו בשיתוף פעולה מדויק עם אנשי המקצוע המקומיים. לאחר כשנה וחצי של עבודה, נמסר הבניין כשהוא מוכן למגורים, והיזם – מרוצה במיוחד מהתוצאה שהחזירה חיים לבניין הוותיק בלב ברוקלין. וכמובן תחזיר את ההשקעה היזמית

שנתחיל?

תפריט נגישות

You cannot copy content of this page