תיאור
טאון-האוס שהפך לארבע דירות עם רוף-טופ

מיקום
ברוקלין, ניו יורק ארה״ב

גודל
440 מ״ר

שירותים
עיצוב פנים | פיקוח בשטח

פלטת חומרים בפרויקט
פלטת חומרים בפרויקט
אריחי גרניט

אריחי גרניט

פח גלי

פח גלי

פרקט אלון

פרקט אלון

אריחי גרניט

אריחי גרניט

פח גלי

פח גלי

פרקט אלון

פרקט אלון

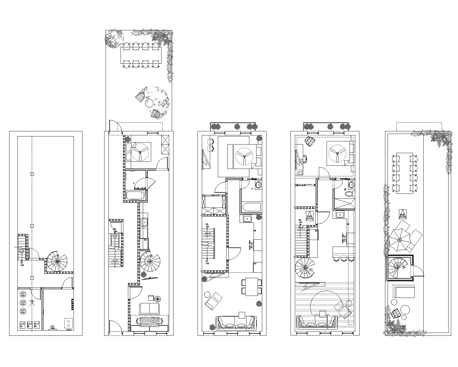
בלב שכונת Park Slope, אחת השכונות המתפתחות והמבוקשות בברוקלין, עמד טאון האוס ישן ומתפורר שלא היה ראוי עוד למגורים. כאן בחרנו לשמר את רוח המבנה וההיסטוריה שלו, אך לעטוף אותה בפרשנות עדכנית, מודרנית ואורבנית. חזיתות הבניין חודשו לגמרי, תוך שילוב פח גלי בגוון אלומיניום טבעי וחלונות שחורים רחבים – שילוב שמעניק לו נוכחות חדשה ומדויקת בין הבניינים ההיסטוריים שסביבו.

הבניין הוסב למתחם מגורים בן שלוש דירות – אחת בכל קומה – כולן מעוצבות בקו אחיד, מינימליסטי ונקי. הדירה העליונה הפכה לדופלקס מרהיב עם מדרגות לולייניות עוצמתיות ורוף־טופ פרטי הצופה לנופי מנהטן. החוויה כולה נשענה על שילוב בין הישן לחדש, בין שימור לאדריכלות עדכנית, ויצרה מבנה שמכבד את העבר אך מדבר בשפה עכשווית, המוכרת לעיר ולתושביה.

שנתחיל?

תפריט נגישות

You cannot copy content of this page